Wohnqualität in Spitzenlage bedeutet mehr als nur ein Dach über dem Kopf. Es bezeichnet den Platz, an welchem man sich wohl fühlt, genügend Raum zum Leben hat und frische Luft zum Atmen, Sicherheit und Geborgenheit. Dies alles trifft auf diese außergewöhnliche Villa in Grünwald zu.
Die fast fertiggestellte Walmdachvilla mit ca. 477 m² reiner Wohnfläche befindet sich auf einem 2.136 m² großen Grundstück in guter Lage von Grünwald.
Der Bau der Villa hat 2014 begonnen und wurde bereits zum größten Teil fertiggestellt. Ausstehend sind noch Arbeiten wie der Innenausbau (z.B. Böden, Decken, teilweise Fliesen, Elektrik, Technik und Türen) sowie die Erstellung des Außenbereiches. Dies ermöglicht es dem Käufer noch seine eigenen Vorstellungen und Wünsche einfließen zu lassen. Ausbaumaterial wie Bodenbeläge und Sanitärgegenstände befinden sich bereits vor Ort.
Erdgeschoss:
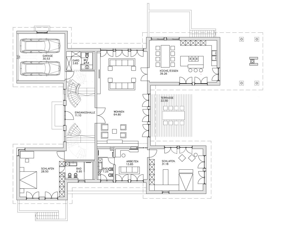
Die großzügige Eingangshalle besticht durch ihren herrschaftlichen Flair mit einem offenen Luftraum zu einer Galerie im oberen Stockwerk, welche man über zwei große geschwungene Treppen erreicht. An den Eingang schließen eine Garderobe, ein Gäste-WC, ein Zugang zur Garage und ein Schlafzimmer mit eigenem Badezimmer an. Zudem gelangen Sie von der Eingangshalle in den hellen Wohnbereich mit ca. 65 m². Hier haben Sie sowohl einen Zugang zu dem offen Koch- und Essbereich wie auch in ein weiteres Schlafzimmer mit eigenem Badezimmer und vorgelagertem Arbeitsbereich. Von diesen drei Räumen gelangen Sie auf die sonnige Süd-Terrasse und somit in den Garten.
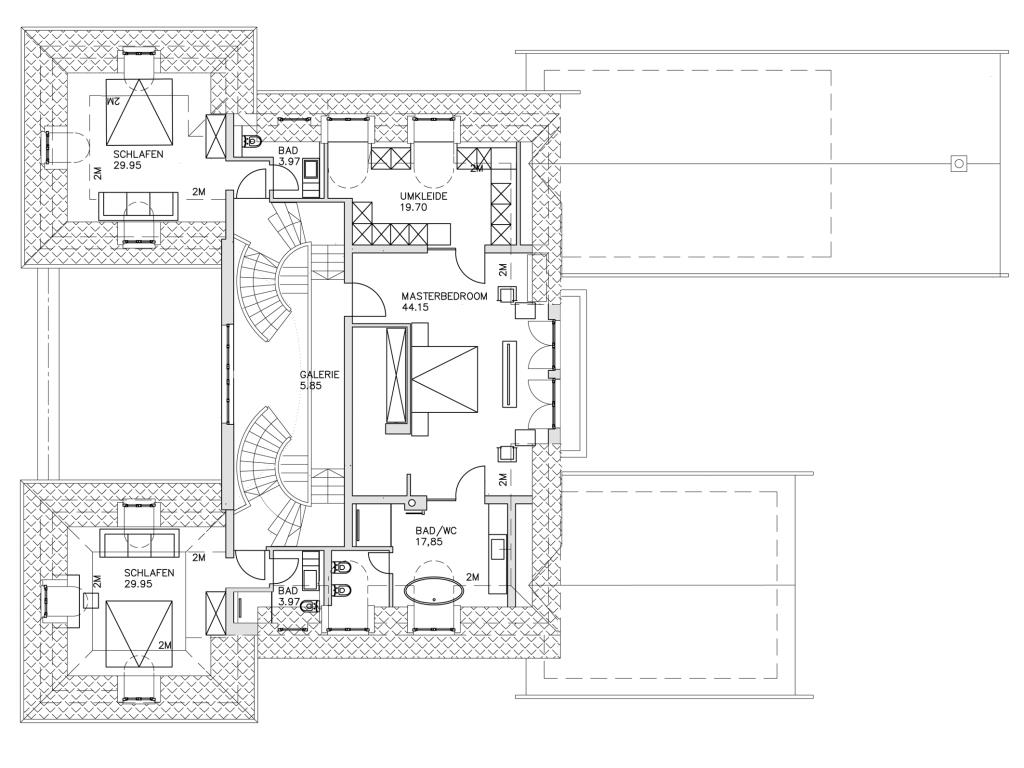
Dachgeschoss:
Über die beiden Treppen erreicht man jeweils ein Zwischengeschoss, in welchen sich zwei Schlafzimmer mit eigenen Bädern befinden. Im Dachgeschoss schließt das große Masterschlafzimmer mit etwa 45 m² an die offene Galerie an. Dieses verfügt über einen abgetrennten Ankleidebereich. Ein weiteres Umkleidezimmer und ein Badezimmer mit einem separaten WC schließen an das Zimmer an.
Untergeschoss:
Im Untergeschoss des Hauses befindet sich zum einen der Hauswirtschaftsraum und die Technik des Gebäudes. Zum anderen finden Sie hier auch einen Weinkeller, ein Gästezimmer inkl. Bad, ein Heimkino und einen großen Wellnessbereich, in welchem eine Sauna, ein Schwimmbad und ein eigener Fitnessbereich vorgesehen sind.
Insgesamt besticht diese Villa durch ihren offen, großzügigen und hellen Grundriss sowie ihre Vielzahl an Schlafräumen und Bädern, ohne dadurch an Großzügigkeit einzubüßen.
- Grundstücksgröße: 2.136 m²
- Wohnfläche: ca. 477 m²
- Nutzfläche: ca. 173 m²
- Schlafzimmer: 6
- Badezimmer: 5
- Bereits durchgeführte Baumaßnahmen/geplante Baudetails:
- – Massivbauweise
- – Süd-West-Ausrichtung
- – Hochwertiges Schieferndach
- – Heimkino
- – Wellnessbereich (Sauna, Schwimmbad, Whirlpool)
- – Fitnessstudio
- – Doppelgarage mit elektrischem Tor
- – Mansardenwalmdächer, Satteldächer, Zwerchgiebel und Gauben als hinterlüftete Holzkonstruktion, Wärmedämmung nach Erfordernis der EnEV.
- – Dacheindeckung aus Schiefer, Deutsche Deckung, ca. 30×30 cm, mit Bogenschnitt
- – Spenglerarbeiten aus Kupferblech
- – Fundament: Bodenplatte aus wasserundurchlässigem Beton, kapillarbrechende Filterschicht mit PE– Folienabdeckung und Perimeterdämmung
- – Kelleraußenwände aus wasserundurchlässigem Ortbeton inkl. Porenwasserabdichtung, Perimeterdämmung
- – Lichtschächte aus Stahlbeton
- – Geschossdecken als Filigrandecken und nach statischen Erfordernissen aus Überbeton
- – Außenwände aus 36,5 cm dickem Ziegel
- – Innenwände je nach Traglast aus 11,5 cm oder 24 cm dickem Ziegelmauerwerk
- – Stahlbetontreppen in halbrunder Form; Beläge aus Naturstein oder Holz werden bereits vor Ort gelagert
- – Einzügiger Kamin mit Lüftung und Schamottrohr
- – Offener Kamin; zusätzlicher Außenkamin
- – Extra schwere Haustüre aus Holz mit Alu-Vorsatzschale, 4-fach Verriegelung, Profilzylinder mit Sicherheitsrosette
- – Fenster und Fenstertüren als 3-fach-Isolierverglasung mit Holz-Alukonstruktionen
- – Fenster und Fenstertüren haben einen System-Sicherheitsbeschlag
- – Raffstores
- – Wohnraumtüren aus Massivholz mit Kassetten
- – Natursteinbelag in der Halle und allen Nassräumen in UG, EG und DG
- – Fußbodenheizung
- – Automatisches bzw. funkgesteuertes Garagentor
- – Anschluss an das vorhandene Fernwärme-Netz
- – Schwimmbad im UG: Schwimmbecken mit den Abmessungen ca. 8,95 x 3,0 x 1,50 m, Gegen- stromanlage, Unterwasserscheinwerfer; Whirlpool mit einem Durchmesser von ca. 1,05 m
Grünwald mit seinen ca. 11.000 Einwohnern liegt etwa 12 km entfernt im Süden der Landeshauptstadt München oberhalb des Isartals und ist eine der exklusivsten Gemeinden Deutschlands.
Der Ort verfügt über mehrere Kindergärten, eine Tagesstätte und einen Hort, eine Grundschule, ein Gymnasium sowie eine VHS.
Die ärztliche Versorgung ist ebenso gegeben wie eine Vielzahl von Sport- und Erholungsmöglichkeiten. Grünwald ist umgeben von grünen, in ihrer Ursprünglichkeit erhaltenen Wäldern, die immer wieder zu neuen Wanderungen und Radtouren einladen. Ebenso beliebt sind Ausflüge in das romantische und landschaftlich reizvolle Isartal oder an das Isarhochufer.
Das vielfältige Angebot des benachbarten München bringt Ihnen eine gemütliche Trambahnfahrt näher. Die Tramhaltestelle Robert-Koch-Str. ist in wenigen Gehminuten zu erreichen. Die Autobahn ist weit genug weg, um die Ruhe nicht zu stören, aber nahe genug, um schnell Richtung München oder in die Berge zu kommen.
Auch zahlreiche Einzelhandelsgeschäfte und Boutiquen befinden sich in Grünwald.
Zusätzlich zu dem bereits positiven Gesamtbild profitieren Haushalte in Grünwald von der Anbindung an das Glasfaser- und Geothermienetz.
Adresse
82031 Grünwald
Die vollständige Adresse der
Immobilie erhalten Sie auf Anfrage.
Ansprechpartner
Stephan Ritter
Tel.: 089 444 55 66 - 11
Fax.: 089 444 55 66 - 10
Hubertusplatz 1
82041 Deisenhofen
