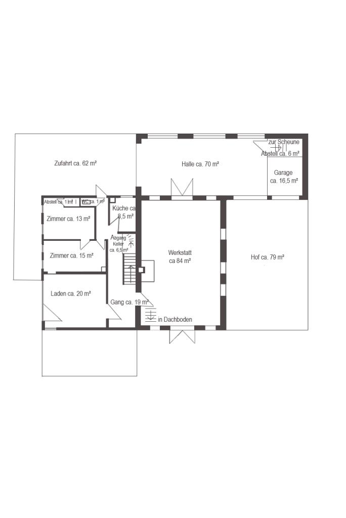
Das Anwesen ist ideal in vier Teile aufzuteilen:
– den „ehemaligen Wohnteil“ mit kleiner Ladeneinheit im Westen,
– die Werkstatt (alte Schmiede) im Osten
– die „Halle“/Unterstellhalle für Lastenwagen, mit Scheune und Garage
– und den unausgebauten „Dachboden“
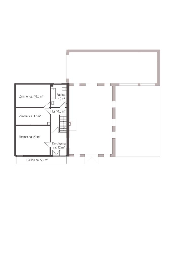
EHEMALIGER WOHNTEIL
Den ehemaligen Wohnteil erreichen Sie über eine gepflasterte Zufahrt im Norden. Dieser Wohnteil verfügt über beschauliche ca. 172 m² mit 5 Räumen sowie einen Krämerladen, welchen Sie über einen eigenen, zur Straße ausgerichteten Eingang separat betreten können. Der Wohnteil erstreckt sich über das Erdgeschoss sowie das 1. Obergeschoss und einen kleinen Gewölbekeller, welcher über eine alte Steintreppe zu erreichen ist. Der eingewachsene Rosenbalkon an der Südfassade schließt den Wohnteil ab.
WERKSTATT
Die Werkstatt, welche im Laufe der Jahre umfunktioniert wurde zur Schmiede, ist ein wahres Highlight. Fensteröffnungen bestehen auf drei Seiten des Raumes und das zweiflügelige Tor in der Südwand zeigt Merkmale des Ausbaus zur Schmiede in den 1930er Jahren. Der Boden ist aus Stirnholz in unterschiedlichen Formaten. Der Raum ist ein wahres Schmuckstück und kann mit seiner offenen Feuerstelle in vielerlei Hinsicht umgebaut und genutzt werden. Angrenzend an die Werkstatt befindet sich ein nach Süden ausgerichteter Hof.
HALLE MIT SCHEUNE & GARAGE
Betreten können Sie die Halle von der Zufahrt im Nord-Westen oder aber über den Hof im südlichen Teil. Sie wurde als Unterstellhalle für Lastenwagen genutzt und verfügt über einen Dielenboden und eine innenliegende Fahrspur. Über die Halle gelangen Sie in eine angrenzende Scheune und eine Garage. Zudem erreichen Sie von hier auch die Werkstatt.
DACHBODEN
Der Dachboden reicht vom niedrigeren Dachgeschoss über dem ehemaligen Wohnteil bis in den Dachraum oberhalb der Werkstatt. Bei einem möglichen Ausbau des gesamten Dachraums zu Wohnraum oder aber einem Masterschlafzimmer mit über 3 Meter Raumhöhe lässt auch hier die Vielfalt keine Wünsche offen.
ALLGEMEINE BAUMERKMALE
Der ehemalige Wohnteil wie auch die Werkstatt sind geprägt durch einen asymmetrischen zweigeschossigen Satteldachbau mit Ost-West ausgerichtetem First, welcher sich über die gesamte Werkstatt zieht. Die unregelmäßige Befensterung mit kleinen Öffnungen spiegelt einen einmaligen Charme des Anwesens wieder und trägt diesen nach außen.
Im Wohnteil ist die bauzeitliche Bausubstanz im wesentlichen erhalten geblieben. Auch das bauzeitliche Dachwerk ist grundlegend erhalten geblieben. Mehrere Indizien wie auch Pläne aus 1899 weisen auf die aus dem 18. Jahrhundert stammende hölzerne Blockbauweise hin. Die Deckenbalken in den Wohnräumen im OG sind bei nachträglichen Umbauarbeiten mit Anhebung der Holzbalkendecken um 1951 ausgetauscht worden.
Die bauliche Situation in der Werkstatt deckt sich weitgehend mit den Umbaumaßnahmen aus 1899 und der Jahrhundertwende, wie die Einfachfenster mit Riegelstöcken, die Flügel mit aufgesetzten geraden Fensterwinkeln und verschlossen mit langen Riegeln.
Das Dachtragewerk des Dachbodens ist als unterschiedlich flaches Rofendach auf Pfette konstruiert.
Das Anwesen muss grund- bzw. kernsaniert werden. Allein durch die einmalige, bereits bestehende Gesamtfläche ist Ihnen dabei äußerst viel Spielraum der Umgestaltung zu einer wahrhaft außergewöhnlichen Immobilie mit historischem Charme geboten.
VORTEILE EINER DENKMALGESCHÜTZTEN IMMOBILIE
Denkmalgeschützte Gebäude versprühen einen ganz gewissen und einmaligen Charme.
Dennoch scheint der Kauf einer denkmalgeschützten Immobilie viele Interessenten abzuschrecken. Dabei sind historische Bauten wie dieses Anwesen nicht nur etwas für Schwärmer und Idealisten, sondern auch für Investoren.
Als Eigenheim oder auch Kapitalanlage öffnen sich viele Vorteile bei dem Kauf eines historischen Bauwerks. Anders als bei einem herkömmlichen Immobilienkauf profitieren Sie hier von vielen finanziellen und steuerlichen Vorteilen, günstigen Krediten, finanziellen Subventionen, staatlichen Förderungen oder aber nicht rückzahlungspflichtigen Tilgungszuschüssen.
Unterhaching mit ca. 27.000 Einwohnern ist ein beliebter Vorort von München, welcher im Süden direkt an das Stadtgebiet grenzt und lediglich 10 km von der Innenstadt entfernt liegt. Mit Bussen, S-Bahn und der direkten Anbindung zur A8 München-Salzburg ist der Ort verkehrstechnisch optimal erschlossen.
Kindergärten, Grundschulen und nahezu sämtliche weiterführende Schulen befinden sich direkt im Ort. Die Versorgung mit Ärzten fast aller Fachrichtungen und zahlreiche Einkaufsmöglichkeiten sind gegeben.
Die S-Bahn-Haltestelle Unterhaching (S3) liegt ca. 5 Fahrradminuten von der Immobilie entfernt und verbindet den Ort mit München oder dem Umland (ca. 17 Minuten bis zum Marienplatz). Zudem befinden sich die Bushaltestellen Unterhaching, Finsinger Weg und Unterhaching, Friedhof in unmittelbarer Nähe des Gebäudes. Die Buslinie 217 verkehrt zwischen der S-Bahnstation Unterhaching und Neuperlach Süd mit Anschluss zur S-Bahn (S7) und U-Bahn (U5). Mit der Linie 220 gelangen Sie zur S-Bahnstation Fasanenpark (S3) und zum Bahnhofsplatz Giesing (S3/S7/U2/U7).
Die Autobahnanschlüsse (A8/A995) sind in Kürze zu erreichen, um schnell in Richtung München oder in die Berge zu kommen.
Der Ort vereint die Vorteile von Stadt und Land in idealer Weise. Auch der Landschaftspark Hachinger Tal auf dem Gelände des ehemaligen Fliegerhorsts Neubiberg, welcher teilweise renaturiert wurde, lädt zu Ausflügen in die Natur oder auf der ehemaligen Start- und Landebahn zu sportlichen Aktivitäten ein. Das vielfältige Sport- und Freizeitangebot mit eigenem Freibad und dem angrenzenden Perlacher Forst machen Unterhaching zu einem Standort von sehr hoher Lebensqualität.
Mit dem Chiemsee im Südosten, dem landschaftlich einzigartigen Isartal im Westen und der Alpenkulisse im Süden kann es für Sie ein schöner Heimatort werden.
Adresse
82008 Unterhaching
Die vollständige Adresse der
Immobilie erhalten Sie auf Anfrage.
Ansprechpartner
Natalie Ritter
Tel.: 089 444 55 66 - 12
Fax.: 089 444 55 66 - 10
Hubertusplatz 1
82041 Deisenhofen
