WOHNANLAGE
Das gepflegte und kleine Wohnhaus mit lediglich 6 Einheiten liegt in grüner und dennoch zentraler Lage von Deisenhofen, wenige Gehminuten von der S-Bahn Deisenhofen sowie der Bahnhofstraße mit jeglichen Einkaufsmöglichkeiten entfernt. Die Anlage wurde 2017 in massiver Ziegelbauweise erbaut und profitiert von jeglichen Annehmlichkeiten eines Neubaus u.a. Energieeinsparverordnung 2016. Weiterhin wurde eine Tiefgarage mit 8 Kfz-Stellplätzen und weiteren Fahrradabstellplätzen für die Wohngemeinschaft errichtet. Die Grundstücksgröße der gesamten Gebäude- und Freifläche beläuft sich auf 1.047 m².
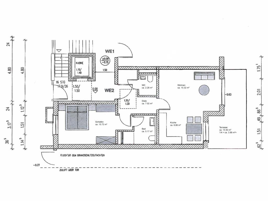
WOHNUNG
Diese hochwertige 2-Zimmer-Gartenwohnung mit ca. 57 m² Wohnfläche garantiert höchste Wohnqualität und verfügt über eine geräumige Diele, ein Schlafzimmer mit Bad ensuite, ein zusätzliches Gäste-WC sowie einen Wohn- und Essbereich mit moderner und vollausgestatteter Einbauküche.
Die angrenzende Westterrasse mit elektrischer Markise lädt zum Entspannen und zu gemütlichen Sonnenuntergängen ein.
Alle Räume sind mit geöltem Eichen-Landhausdielenparkett und die Bäder mit hochwertigem Feinsteinzeug belegt.
Zur Wohnung gehört des Weiteren ein Kellerabteil, Fahrradkeller sowie ein Gemeinschaftswaschraum mit eigenem Versorgungsanschluss für Waschmaschine und Trockner. Ein ebener TG-Einzelstellplatz gehört ebenfalls zur Wohnung mit Normalstromanschluss und zusätzlichem Starkstromanschluss für Elektrofahrzeuge.
- zentrale Lage
- Einheit von 6 Wohnungen
- Fernwärme
- Entkalkungsanlage
- ebener TG-Stellplatz, mit Starkstromanschluss für Elektrofahrzeuge
- Fahrradkeller
- Einbauküche mit allen E-Geräten
- Fußbodenheizung
- elektrische Rollläden
- zusätzliches Gäste-WC
- geölter Eichen-Landhausdielenparkett
- große Westterrasse mit Garten zur Alleinnutzung
Die eigenständige Gemeinde Oberhaching erfreut sich insbesondere bei Familien, Sport- und Naturliebhabern an äußerster Beliebtheit.
Eingebettet in üppiges Grün erstreckt sich die Gemeinde entlang des Perlacher/Grünwalder/- und Deisenhofener Forsts und dem landschaftlich einzigartigen Isartal im Westen. Eine hervorragende Infrastruktur zur Münchner Innenstadt (ca. 15 km) macht Oberhaching zu einer der Spitzenlagen im Münchner Süden. In Oberhaching/Deisenhofen sind jegliche Schulformen vorhanden, welche alle in Fuß- und Fahrradnähe zu erreichen sind.
Alle Geschäfte des täglichen Bedarfs, kleine Cafés und feine Restaurants findet man hier neben dem Feinkostladen Kraut & Rüben oder anderen ortsüblichen Einzelhandelsschäften.
Eine ausgezeichnete medizinische Versorgung durch Ärzte, Zahnärzte und Apotheken tragen zur hohen Lebensqualität von Oberhaching bei.
Freizeit und Erholung? Suchen Sie sich etwas aus! Beinahe unendlich sind die Fahrrad- und Wanderwege. Das aus natürlichen Quellen gespeiste Further-Naturbad bietet im Sommer die passende Erfrischung. Der beliebte Deininger Weiher lädt zum Baden ein und das nahe Isartal zu langen Spaziergängen. Der Grünwalder Forst bietet mit dem Walderlebniszentrum Adrenalin im Kletterpark. Reiten in den umliegenden kleinen Dörfern, Fußball, Tennis- und Squashclubs sowie die Golf Range Brunnthal und der Münchener Golf Club in Straßlach werden im nahen Umkreis angeboten.
Auch für Wochenend-Ausflüge in die Berge oder zu den umliegenden Seen ist Oberhaching mit der Anbindung an die A8/A995 der ideale Ausgangspunkt. Sei es ein Ausflug an den Chiemsee, Tegernsee, Schliersee, Starnberger See oder Ammersee – Sie haben die Qual der Wahl. Die S-Bahn-Haltestelle Deisenhofen (S3 Holzkirchen-Mammendorf) verbindet den Ort mit München und dem Umland. Weiterhin hält in Deisenhofen der Meridian (direkte Verbindung mit Rosenheim; hält auch in Holzkirchen, Kreuzstraße, Westerham, Bruckmühl, Heufeldmühle, Heufeld, Bad Aibling, Bad Aibling Kurpark und Kolbermoor. Fahrten zum Münchner Hauptbahnhof u.a. über Solln und Harras werden mit dem Meridian während den Hauptverkehrszeiten ca. zweimal pro Stunde angeboten). Diverse Buslinien verbinden Deisenhofen mit umliegenden Orten wie z.B. Neuperlach Süd, Grünwald, Höllriegelskreuth, Dietramszell, Geretsried, Sauerlach, Putzbrunn, Haar, Heimstetten, Endlhausen und Wolfratshausen.
Adresse
82041 Oberhaching
Die vollständige Adresse der
Immobilie erhalten Sie auf Anfrage.
Ansprechpartner
Natalie Ritter
Tel.: 089 444 55 66 - 12
Fax.: 089 444 55 66 - 10
Hubertusplatz 1
82041 Deisenhofen
