Das hier exklusiv zum Verkauf angebotene Eckhaus, nur ein paar Minuten vom Zentrum Sauerlach entfernt, wurde im Jahr 2019/2020 in einer hochwertigen konventionellen Ziegelbauweise errichtet und erfüllt jegliche Ansprüche an modernes sowie ländliches Wohnen – ob zeitlose Architektur, Exklusivität und Eleganz, Individualität oder die Infrastruktur vor Ort.
Das Eckhaus überzeugt durch seine Großzügigkeit und erstreckt sich über eine reine Wohnfläche von ca. 184 m² und eine Nutzfläche von ca. 127 m² (inkl. Terrasse). Das Grundstück welches real geteilt ist, richtet sich nach Westen und weist eine Grundstücksfläche von 429 m² auf.
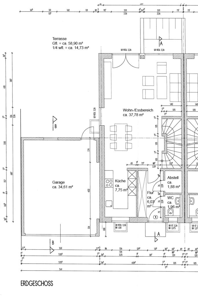
Das Erdgeschoss besteht aus einem ca. 38 m² großen lichtdurchfluteten Wohn- und Essbereich, einer luxuriösen und vollausgestatteten modernen Küche mit Theke sowie einer geräumigen Eingangsdiele mit Abstellkammer und Gäste-WC.
Über die Wohnzimmer- sowie auch über eine seitlich platzierte abschließbare Terrassentür gelangt man zum äußerst großzügigen überdachten Terrassenbereich und dem schön angelegten und uneinsehbaren Garten.
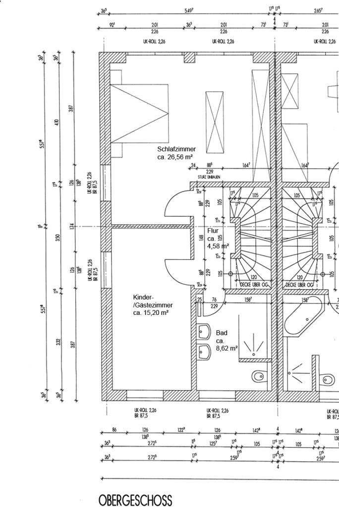
Im Obergeschoss befinden sich zwei großzügige Zimmer (eines davon mit begehbarer Ankleide) sowie ein Tageslichtbadezimmer mit moderner Walk-In Dusche.
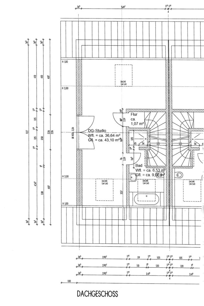
Im ausgebauten Dachstudio befindet sich das zweite Tageslichtbad mit Dusche und Badewanne. Das Studio vermittelt durch die großen Dachflächenfenster und die bodentiefen Fenster auf der Giebelseite ein besonderes Wohngefühl.
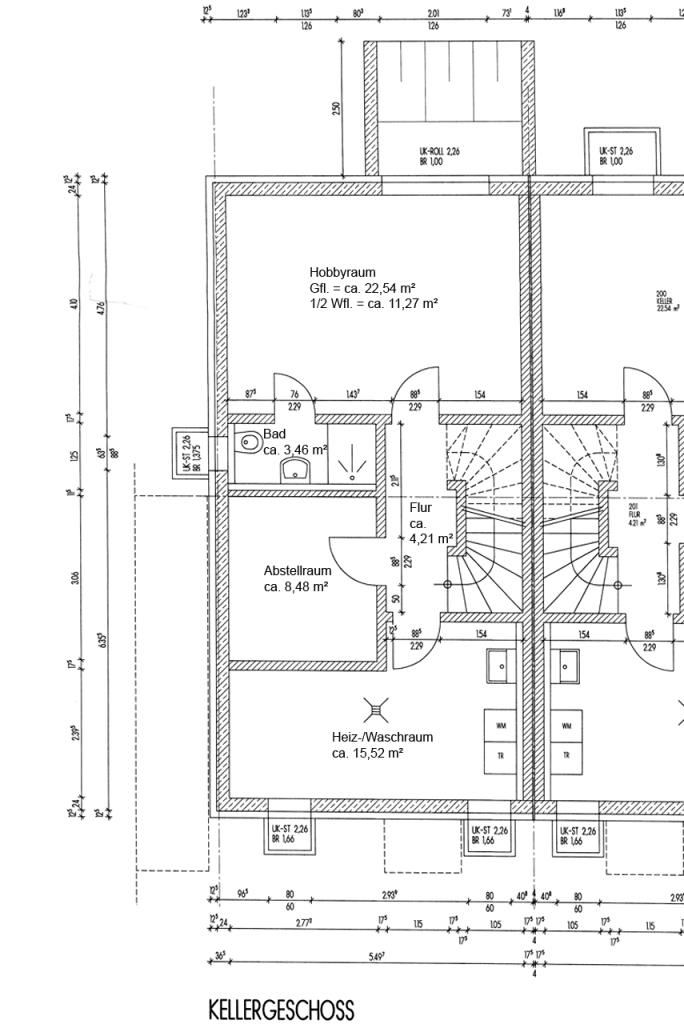
Als weiteres Highlight befindet sich im Untergeschoss noch ein Zimmer mit angrenzendem Bad, welches durch ein großes Doppelfenster mit Abböschung vielseitig genutzt werden kann. Weiterhin befinden sich im Untergeschoss ein Heiz- und Waschraum sowie ein Abstellraum / Garderobe.
Des weiteren überzeugt die große Doppelgarage mit Starkstromanschluss sowie direktem Zugang zum Terrassenbereich. Ein Jacuzzi auf der Terrasse sowie ein Geräteschuppen runden das Gesamtbild positiv ab.
Zusammengefasst kann dieses hochwertige Eckhaus mit allen seinen vorhandenen Highlights (siehe Auflistung Highlights) für Sie und Ihre Familie ein schönes neues Zuhause werden.
- LAGE
- Wohnsiedlungsgebiet
- grüne Umgebung
- Nachbarschaft bestehend aus Einfamilien-, Doppel- und Reihenhäusern
- nur wenige Minuten vom Zentrum Sauerlach entfernt
- S-Bahnanschluss S3 (Holzkirchen-Mammendorf)
- _________________________________________________
- ALLGEMEINE INFORMATIONEN BAUBESCHREIBUNG
- konventionelle massive Ziegelbauweise
- Fundament aus WU Beton (gedämmt)
- Raumhöhen: UG, EG & OG: ca. 2,43 m / DG: First ca. 2,83 m
- Wärmedämmziegel 36,5 cm
- mineralische, zweilagige Putzbeschichtung (Außenfassade)
- zweischalige Haustrennwand (Kommunwand)
- Dachstuhl aus Nadelholz
- Kunststofffenster mit 3-fach Isolierverglasung
- elektrisch bedienbare Rollläden
- zentrale Staubsaugeranlage (etagenweise)
- Luft-Wärme-Pumpe (Zentralheizung)
- Fußbodenheizung in allen Räumen
- Solaranlage verbunden mit 1.000 L Pufferspeicher
- kontrollierte Raumbelüftung mit Wärmerückgewinnung
- __________________________________________________
- AUFTEILUNG
- großzügiger Wohn-/Essbereich mit offener Küche und Theke
- 2 Schlafzimmer im OG, 1 Schlafzimmer im DG mit eigenem Bad
- 3 Tageslichtbadezimmer (UG, OG, DG)
- Gäste-WC
- separate Ankleide im Schlafzimmer
- Waschküche + Abstellkammer / Garderobe im UG
- Hobbyraum / Büro im UG mit eigenem Bad (auch ideal als Gästezimmer)
- überdurchschnittlich große Westterrasse mit schön angelegtem Garten
- großer Geräteschuppen
- __________________________________________________
- MERKMALE AUSSTATTUNG
- neuwertige, moderne und hochwertige Ausstattung
- 120 cm x 120 cm Feinsteinzeug-Fliesen im Wohnbereich, Treppenhaus und
- Sanitärbereichen
- hochwertiger Eichen-Vollholzdielenparkett in den Schlafräumen
- massive 60 cm x 60 cm Steinfliesen im Terrassenbereich
- luxuriöse Einbauküche mit jeglichen Elektrogeräten z.B. Kaffeevollautomat und Wasserhahn mit Sprudelfunktion
- Netzwerkdosen in allen Wohnräumen
- Einbauradios in der Küche und allen Bädern
- Abendsonnenterrasse (westlich ausgerichtet) mit Jacuzzi / Whirlpool
- sehr große Doppelgarage mit Starkstromanschluss und elektrischem Tor
- Anschlussmöglichkeit einer Wallbox für E-Autos
- Pergola mit elektrisch bedienbarer Sonnenmarkise
- Geräteschuppen
Allgemein:
Sauerlach, auch das Tor zum Oberland genannt, liegt ca. 20 km südlich von München idyllisch auf einer Rodungsinsel und ist umgeben von Wäldern.
Rund 8.700 Einwohner zählt der Vorort mit seinen 12 Ortsteilen (Altkirchen, Arget, Brand, Grafing, Großeichenhausen, Gumpertsham, Gumpertshausen, Kleineichenhausen, Lanzenhaar, Lochhofen, Sauerlach und Walchstatt) und ist bereits seit der Gebietsreform im Jahre 1978 mit 56,94 km² die flächenmäßig größte Gemeinde im oberbayerischen Landkreis München.
Anbindung/Verkehrsnetz:
In der Ortsmitte kreuzen sich die Staatsstraße 2573 (München-Bad Tölz) und die Staatsstraße 2070 (Wolfratshausen-Aying).
2 km via Osten von Sauerlach gelangen Sie zur Anschlussstelle Hofoldinger Forst der Bundesautobahn A8 (München–Salzburg).
– Autobahnanschlüsse Richtung München, Nürnberg und Salzburg/Innsbruck
– Autobahnanbindung in die Münchener Innenstadt (20 km)
– zum Flughafen München „Franz Josef Strauß“ (64 km)
Auch das öffentliche Verkehrsnetz ist in Sauerlach sehr gut ausgebaut. Die Gemeinde ist an das Münchner S-Bahn-Netz (S 3) angeschlossen, womit Sie die Münchner Innenstadt in nur ca. 30 Minuten oder aber die Messe, den Flughafen, die Allianz Arena usw. bequem erreichen können. Innerhalb Sauerlachs verbinden die MVV-Buslinien 223, 226 und 244 die anderen Ortsteile und das Gewerbegebiet mit dem Hauptort.
Bildung:
Sauerlach hat mehrere Kindergärten, u.a. einen Montessori Kindergarten, Krippe, Hort sowie die Friedrich-von-Aychsteter-Grundschule. Weitere Schulen in den umliegenden Nachbarorten sind mit den öffentlichen Verkehrsmitteln sowie Schulbussen (Gymnasium Oberhaching, Staatliche Realschule Holzkirchen od. Taufkirchen, Lise-Meitner-Gymnasium Unterhaching etc.) gut zu erreichen.
Geschäfte, Natur und Freizeitmöglichkeiten:
Jegliche Geschäfte des täglichen Bedarfs wie Apotheken, Ärzte, Einkaufsmöglichkeiten etc. sind im Ort vorhanden.
Von jedem Punkt der Gemeinde ist man in 5 bis 10 Minuten im Grünen. Viele Spazier- und Radwege laden zur Erholung in der Natur ein. Auch ist Sauerlach ein hervorragender Ausgangspunkt zu Seen und Bergen im bayerischen Oberland.
Sauerlach bietet des Weiteren zahlreiche Möglichkeiten für die Freizeitgestaltung am Ort und in der näheren Umgebung. Sei es in einem der rund 70 verschiedenen Vereine, beim Sport oder in der Natur.
Zwei Hotels, ein Gasthof, zahlreiche gute Restaurants sowie vielseitige Veranstaltungen laden Sie nach Sauerlach ein und lassen diesen zu einem attraktiven Familienort werden.
Adresse
82054 Sauerlach
Die vollständige Adresse der
Immobilie erhalten Sie auf Anfrage.
Ansprechpartner
Maximilian Ritter
Tel.: 089 444 55 66 - 13
Fax.: 089 444 55 66 - 10
Hubertusplatz 1
82041 Deisenhofen
