Das Einfamilien-/Kettenhaus wurde 1934 in Massivbauweise in einer verkehrsberuhigten Sackgasse inmitten der Mustersiedlung in Ramersdorf errichtet.
Das Haus steht wie auch der Rest der Siedlung unter Ensembleschutz. Diese Art des Denkmalschutzes bezieht sich im Gegensatz zum üblichen Denkmalschutz lediglich auf die Außenansichten und nicht auf das Innere der Häuser.
Das Haus erstreckt sich über zwei Etagen:
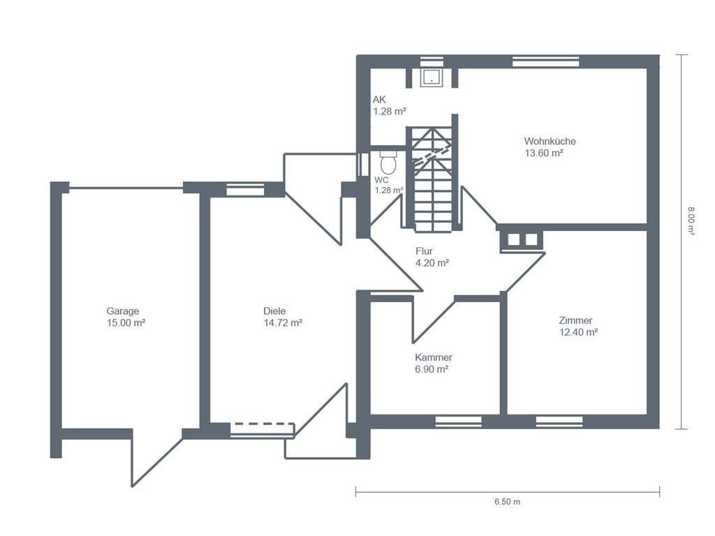
Im Erdgeschoss finden Sie eine gemütliche Wohnküche, ein Wohn- oder Schlafzimmer, einen kleinen Raum, welcher sich zur Benützung als Büro anbietet und ein WC. Zudem wurden 1988 eine Diele und eine Garage mit jeweils ca. 15 m² angebaut. Von der Diele haben Sie auch einen Zugang in den großzügigen, nach Südosten ausgerichteten Garten.
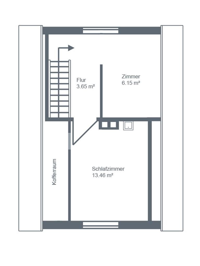
Das Obergeschoss besteht aus einem Schlafzimmer mit einem geräumigen Kofferraum/Speicher und einem kleinen weiteren Raum. Zudem gelangen Sie von hier auch auf den Dachspeicher.
Im Keller befindet sich das Badezimmer des Hauses, ein Heizungs- und ein Keller- bzw. Lagerraum.
In den meisten Räumen des Hauses wurde Vollholzparkett verlegt.
Wichtige Arbeiten (Dachsanierung, Heizung etc.) wurden vorgenommen. Die entsprechenden Unterlagen liegen uns vor.
Der Keller weist die alterstypische Feuchtigkeit auf.
Es ist kein Energieausweis nötig, da es sich um ein Baudenkmal gemäß § 16 Abs. 5 EnEV 2014 bzw. § 2 EnEV 2014 handelt.
Das Haus befindet sich in der Mustersiedlung Ramersdorf. Insgesamt wurden hier im Rahmen der „Deutschen Siedlungsausstellung“ 198 Häuser (6 davon nachträglich) in 34 verschiedenen Bautypen errichtet. Die Planung der Siedlung wurde unter anderem von Architekten wie Guido Harbers, Sep Ruf, Franz Ruf etc. übernommen.
Zudem wurden in diesem Ensemble auch mehrere Grünflächen inkludiert. Durch diese und durch den Ensembleschutz (nähere Informationen können Sie gerne bei uns im Büro erhalten) hat sich die Siedlung ihren ursprünglichen, dörflichen Charme mitten in München erhalten.
Geschäfte des täglichen Bedarfs, Ärzte, Apotheken, Kindergärten und Schulen befinden sich in der unmittelbaren Umgebung.
Auch die öffentlichen Verkehrsmittel sind gut zu erreichen. Die Bushaltestelle Ramersdorf (Linien 55, 59 und N45) ist ca. 4 Minuten und die U-Bahnstation Karl-Preis-Platz etwa 10 Minuten fußläufig entfernt.
Der Mittlere Ring 2R oder die A8 Richtung Salzburg sind mit dem Auto in wenigen Minuten erreichbar.
Mit ihrem dörflichen Charme, ihrer Nähe zur Münchner Innenstadt und der guten Anbindung ins Münchner Umland könnte diese Mustersiedlung ein schönes Zuhause für Sie werden.
Adresse
81669 München
Die vollständige Adresse der
Immobilie erhalten Sie auf Anfrage.
Ansprechpartner
Alina Seiz
Tel.: 089 444 55 66 - 14
Fax.: 089 444 55 66 - 10
Hubertusplatz 1
82041 Deisenhofen
