Bei diesem Objekt handelt es sich um ein überschaubares 3-Parteienhaus, welches sich auf zwei Wohneinheiten und eine Gewerbeeinheit aufteilt.
Die hier angebotene, individuelle und moderne Bürofläche befindet sich in einem separaten Gebäudeteil mit eigenem Eingangsbereich und erstreckt sich mit ca. 112 m² auf zwei Etagen. Sie überzeugt durch ihre moderne Ausstattung und die flexible Raumaufteilung, die sich ideal für Büros aller Art eignet.
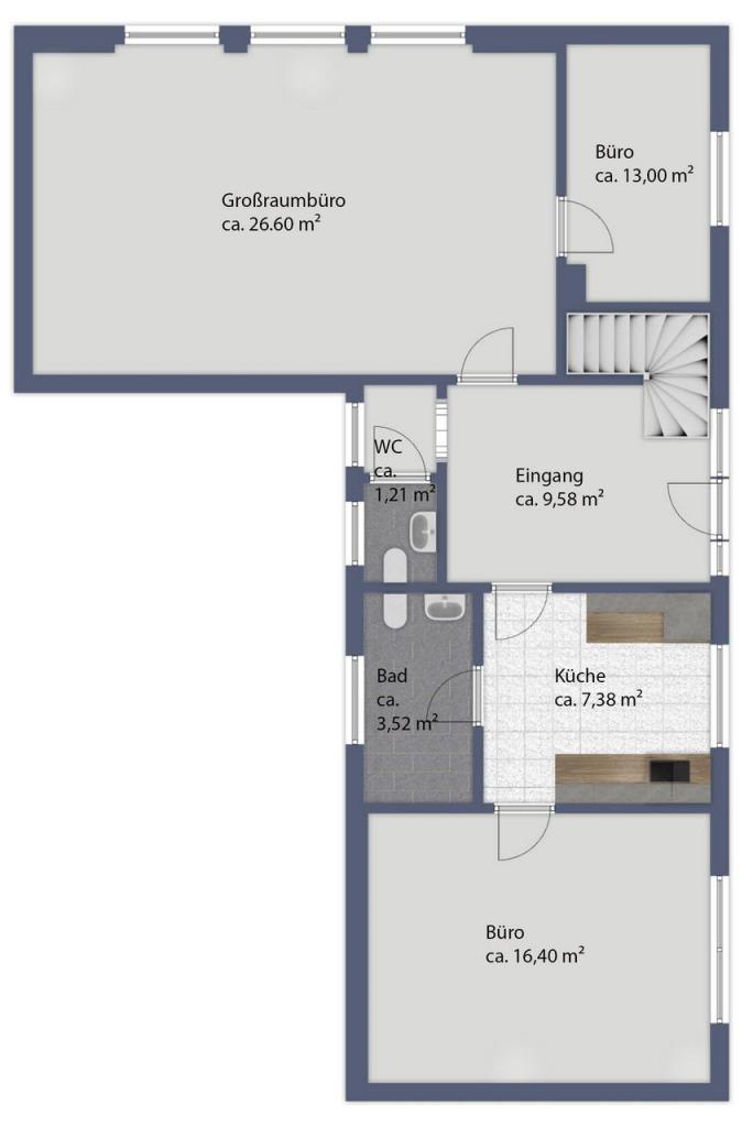
Im Erdgeschoss befinden sich drei gut geschnittene Büroräume, die sich ideal für Einzel- oder Teamarbeitsplätze anbieten. Zudem verfügt die Etage über eine funktionale Küche, ein modernes Duschbad sowie ein Gäste-WC. Die großzügigen Fenster sorgen für eine helle und freundliche Arbeitsatmosphäre.
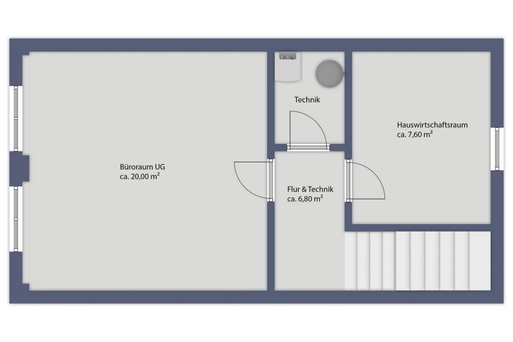
Eine runde Treppe im Eingangsbereich führt ins Souterrain, wo sich ein großer, lichtdurchfluteter Büroraum befindet. Der Raum eignet sich perfekt für Besprechungen, Konferenzen oder als zusätzlicher Arbeitsbereich. Ergänzt wird das Souterrain durch einen praktischen Abstellraum sowie einen Technikraum, der ausreichend Platz für die Unterbringung von Geräten und Technik bietet.
Besonders hervorzuheben ist auch die hohe Anzahl an öffentlichen Straßenparkplätzen vor der Gewerbefläche, die Ihren Kunden und Mitarbeitern eine bequeme Erreichbarkeit gewährleistet. Auch befindet sich in 3 Gehminuten entfernt die gebührenfreie öffentliche Tiefgarage der Gemeinde Grünwald mit E-Ladeinfrastruktur.
Mit einem Gewerbesteuerhebesatz von 240% liegt Grünwald in einem attraktiven Bereich und rundet das Angebot somit positiv ab.
Grünwald mit seinen ca. 11.000 Einwohnern ist eine der begehrtesten Gemeinden im Münchener Süden und bietet Unternehmen eine besonders attraktive Kombination aus ländlichem Charme und urbaner Nähe. Die Gemeinde zeichnet sich durch einen sehr niedrigen Gewerbehebesatz (240%) aus, was für Unternehmen steuerliche Vorteile mit sich bringt. Dies macht Grünwald zu einem bevorzugten Standort für Unternehmen unterschiedlichster Branchen.
Verkehrsanbindung:
Die Tramhaltestelle „Derbolfinger Platz“ ist in ca. 10 min. zu Fuß zu erreichen. Von hier verkehrt die Linie 25 bis in die Münchner Innenstadt.
Die nächstgelegenen S-Bahnstationen befinden sich entweder in Höllriegelskreuth S7 (Bus ca. 15 min. / Auto ca. 5 min.) oder in Furth S3 (Bus ca. 20 min. / Auto ca. 6 min.).
Gastronomie und Freizeit:
Grünwald verfügt über ein gut ausgebautes Angebot an Restaurants und Cafés, die sowohl lokale Spezialitäten als auch internationale Küche anbieten. Die Umgebung bietet zudem zahlreiche Freizeitmöglichkeiten, darunter Sporteinrichtungen und Naherholungsgebiete wie den Grünwalder Forst, der sich ideal für Erholung und Outdoor-Aktivitäten eignet.
Fazit:
Die Büroeinheit in Grünwald profitiert von einer perfekten Kombination aus guter Erreichbarkeit, attraktiver Steuerstruktur und einer gehobenen Lebensqualität. Der Standort bietet sowohl für Unternehmen als auch für deren Mitarbeiter ein ideales Umfeld mit einer sehr guten Anbindung. In unmittelbarer Nähe finden sich zahlreiche gastronomische Einrichtungen sowie Freizeitmöglichkeiten, die für eine ausgewogene Work-Life-Balance sorgen.
ENTFERNUNGEN:
Autobahnauffahrt Oberhaching (AB8 / AB99): 7 Fahrminuten
S-Bahnhof Furth (S3): 7 Fahrminuten
S-Bahnhof Höllriegelskreuth (S7): 5 Fahrminuten
Tramstation „Derbolfinger Platz“: 10 Gehminuten
Flughafen München: 40 Minuten Fahrtweg
Hbf München: 30 Minuten Fahrtweg
Adresse
82031 Grünwald
Die vollständige Adresse der
Immobilie erhalten Sie auf Anfrage.
Ansprechpartner
Maximilian Ritter
Tel.: 089 444 55 66 - 13
Fax.: 089 444 55 66 - 10
Hubertusplatz 1
82041 Deisenhofen
