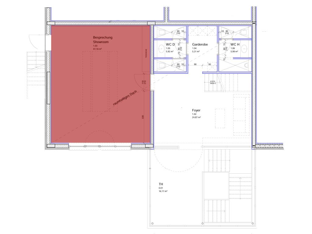
Bei diesem Objekt handelt es sich um eine ca. 47 m² große, moderne und repräsentative Neubau-Gewerbeeinheit inmitten des Gewerbegebiets Oberhaching.
Die Gewerbeeinheit ist Teil eines Firmengebäudes, welches im Jahr 2019 errichtet wurde und nun zum Erstbezug angeboten wird.
Die Einheit kann durch den eindrucksvollen und lichtdurchfluteten Haupteingang / Foyer mit geschwungener Treppe (ideal für Kundenbesuch) oder durch einen separaten Seiteneingang betreten werden.
Weiterhin besteht die Möglichkeit, im Foyer Besprechungstermine abzuhalten. Dazu wird vom Vermieter ein Besprechungstisch zur Verfügung gestellt. Zur Einheit gehört noch eine gemeinschaftliche Garderobe und zwei getrennte Toilettenräume (Damen und Herren WC).
Das Gebäude ist zudem an das Glasfasernetz angeschlossen und bietet dadurch eine sehr schnelle Internetverbindung.
Auf Wunsch kann ein Außenstellplatz direkt vor dem Gebäude dazu gemietet werden.
- MERKMALE & AUSSTATTUNG
- Multifunktionale und moderne Gewerbefläche im OG mit ca. 47 m²
- zzgl. Gemeinschaftsflächen
- Repräsentative Eingangshalle / Foyer
- Besprechungstisch im Foyer
- Eichendielen-Parkett
- Verdunkelung durch Raffstores
- EDV-Verkabelung
- Glasfaserkabelanschluss
- Antennenanschluss
- Teeküche (Küche muss vom Mieter besorgt werden)
- Getrennte Sanitäreinrichtungen (Damen & Herren)
- 1 x Außenstellplatz kann gegen Aufpreis dazu gemietet werden (s. Seite 15)
- Nutzungsmöglichkeiten:
- Büro, Schulung, Atelier, Showroom, Studio (z.B. Foto- oder Yogastudio) usw.
- Gewerbehebesatz der Gemeinde Oberhaching: 250 v.H.
Oberhaching, südlich von München gelegen, verfügt über eine komplette Infrastruktur.
Von Oberhaching zur Münchner Innenstadt benötigen Sie ca. 20 Minuten. Mit Deisenhofen und Furth stehen Ihnen gleich zwei S-Bahn-Stationen in Oberhaching zur Verfügung (S3). Der MVV-Bus (Nr. 224 / 227, Bushaltestation im Gewerbegebiet „Schmidweg“) verbindet das Gewerbegebiet Oberhaching mit dem Ortskern (Bahnhofstraße) sowie mit beiden
S-Bahn-Stationen.
Weiterhin hält in Deisenhofen der Meridian (direkte Verbindung mit Rosenheim; hält auch in Holzkirchen, Kreuzstraße, Westerham, Bruckmühl, Heufeldmühle, Heufeld, Bad Aibling, Bad Aibling Kurpark und Kolbermoor. Fahrten zum Münchner Hauptbahnhof u.a. über Solln und Harras werden während den Hauptverkehrszeiten ca. zweimal pro Stunde angeboten).
Mit einem Gewerbesteuerhebesatz von 250% liegt Oberhaching in einem attraktiven
Bereich und lockt somit eine Vielzahl erfolgreicher Unternehmen an.
Der Autobahnanschluss zur A99 ist in 5 Minuten zu erreichen.
Zum Mittagstisch bietet Oberhaching zahlreiche Lokalitäten für jeden Geschmack und jede Preisklasse.
LAGE
Autobahnauffahrt Oberhaching (AB8 / AB99): 5 Minuten
S-Bahnhof Furth (S3): 10 Minuten Gehweg
S-Bahnhof Deisenhofen (S3): 5 Minuten Fahrtweg
Flughafen München: 40 Minuten Fahrtweg
Hbf München: 30 Minuten Fahrtweg
Adresse
82041 Oberhaching
Die vollständige Adresse der
Immobilie erhalten Sie auf Anfrage.
Ansprechpartner
Maximilian Ritter
Tel.: 089 444 55 66 - 13
Fax.: 089 444 55 66 - 10
Hubertusplatz 1
82041 Deisenhofen
