Das moderne Einfamilienhaus wurde 2017 gebaut und verfügt über eine Grundstücksgröße von angenehmen 420 m².
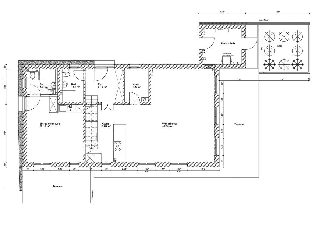
Der einladende Eingangsbereich ist mit einem großen Einbauschrank ausgestattet und grenzt an ein Gäste-Duschbad mit bodentiefer Dusche an. Vom Eingangsbereich aus betreten Sie den Wohnbereich, welcher über eine großzügige Einbauküche mit Halbinsel verfügt und mit sehr hochwertigen Geräten ausgestattet ist. Für ausreichend Stauraum sorgt zudem eine separate Vorratskammer. Der an den Kochbereich angrenzende, lichtdurchströmte Wohn– und Essbereich hat rund 47 m² und bietet dank seiner geradlinigen und offenen Aufteilung höchste Wohnqualität.
Der Garten mit einer großen Terrasse in Richtung Süd-Osten lädt zu gemeinsamen Sommertagen mit der Familie ein. Außerdem gibt es noch zwei weitere kleinere Süd-West-Terrassen, welche sich an der Traufseite des Hauses entlang ziehen.
Das Erdgeschoss besticht zudem mit einer Einliegerwohnung mit Anschlüssen für eine Küche und einem Duschbadezimmer. Durch einen separaten Hauseingang kann sie als eigene geschlossene Einheit genutzt werden oder aber durch einen zusätzlichen Zugang zum Haupthaus als weiteres Zimmer genutzt werden.
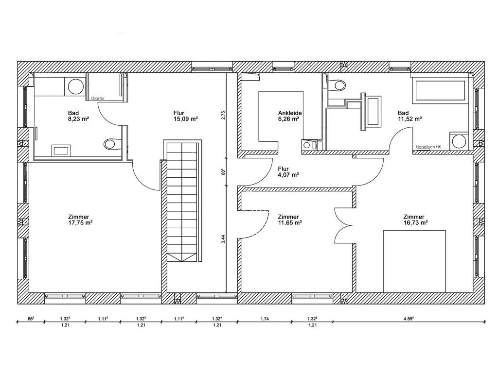
Das Obergeschoss ist über eine geschmackvolle Treppe mit Wandspots zu begehen. Von hier aus gelangen Sie über einen raumhaltigen Gang aus in alle Zimmer des Stockes.
Das Masterschlafzimmer verfügt über ein Ankleidezimmer, ein Master-Tageslichtbadezimmer mit bodentiefer Walk-In Dusche und Badewanne, sowie über ein Durchgangszimmer, welches sich optimal für Homeoffice nutzen lässt. Zudem befindet sich im Obergeschoss noch ein zusätzliches Badezimmer mit Dusche und Waschmaschinenanschluss und ein weiteres Schlafzimmer.
Das gesamte Einfamilienhaus wurde mit hochwertigem Dielenparkett und Feinsteinzeug in den Bädern belegt.
Ein Haustechnikraum, vier Außenstellplätze und ein Carport gehören ebenfalls zum Haus. Eine E-Ladestation steht dem Mieter zur Verfügung.
- zentrale Lage
- umlaufende Terrasse in Süd-Ost-West-Ausrichtung
- Süd-Ost-Garten
- offener und heller Grundriss
- geschmackvolle Einrichtung
- moderne, hochwertige Einbauküche
- separate Vorratskammer
- 5 Zimmer
- 3 Schlafzimmer (inkl. Einliegerwohnung)
- Durchgangszimmer, ideal geeignet für Homeoffice
- Einliegerwohnung mit Anschlüssen für Einbauküche, Bad und separatem Eingang
- Ankleideraum
- 4 Badezimmer
- Fußbodenheizung
- Fernwärme
- 4 Außenstellplätze, 1 Carport (E-Ladestation ist vorhanden)
- separater Haustechnikraum
Das charmante Einfamilienhaus befindet sich in Oberhaching in zentraler und ruhiger Lage in kurzer Distanz zum Oberhachinger Ortskern.
Oberhaching, gelegen im Südosten Münchens, ist eine Flächengemeinde mit über 14.500 Einwohnern. Die Gemeinde verbindet anspruchsvoll-ländliches Wohnen und lebendige Traditionspflege mit der Nähe zur Landeshauptstadt München und zu südbayrischen Naherholungsgebieten.
Die Infrastruktur Oberhachings lässt keine Wünsche offen. In fußläufig erreichbarer Nähe befindet sich das Schulzentrum (Grundschule, Mittel- und Wirtschaftsschule, Gymnasium, Realschule und zukünftige FOS) sowie die Gemeindeverwaltung. Der Ort verfügt über 8 Kindergärten sowie Krippen und Horte. Die Volkshochschule bietet ein anspruchsvolles und reichhaltiges Programm. Kirchen sowie eine Vielzahl unterschiedlichster Vereine ergänzen das vielseitige Angebot dieser lebendigen und traditionsreichen Gemeinde.
Sämtliche Einkaufsmöglichkeiten und eine ausgezeichnete medizinische Versorgung durch Ärzte, Zahnärzte und Apotheken tragen zur hohen Lebensqualität von Oberhaching bei.
Der wohl bekannteste Ortsteil ist Deisenhofen, der über einen eigenen S-Bahn-Anschluss (S3, Meridian) verfügt, wodurch Pendler fast rund um die Uhr in 10-minütigem Takt in nur 25 Minuten Fahrzeit bis zum Marienplatz gelangen. Diverse Buslinien verbinden den Ort mit den umliegenden Gemeinden und auch die BAB München-Salzburg ist verkehrsgünstig zu erreichen, um schnell in Richtung München oder in die Berge zu kommen.
Beinahe unendlich sind die Fahrrad- und Wanderwege im Nahe gelegenen Deisenhofner Forst und dem Naturschutzgebiet Gleißental. Ob Radeln, Joggen oder Nordic Walking, Sie kommen aus der Tür und können gleich loslegen. Das aus natürlichen Quellen gespeiste Further-Naturbad wurde zur Saison 2009 eröffnet und sehr gut angenommen.
Weiterhin kann man im Sommer auch zum Deininger Weiher, der mit dem Fahrrad oder Auto leicht zu erreichen ist, zum Baden gehen und im Winter lädt der See zum Eisstockschießen ein.
Mit dem Chiemsee im Südosten, dem landschaftlich einzigartigen Isartal im Westen und der Alpenkulisse im Süden kann es für Sie ein schöner Heimatort werden.
Adresse
82041 Oberhaching
Die vollständige Adresse der
Immobilie erhalten Sie auf Anfrage.
Ansprechpartner
Natalie Ritter
Tel.: 089 444 55 66 - 12
Fax.: 089 444 55 66 - 10
Hubertusplatz 1
82041 Deisenhofen
