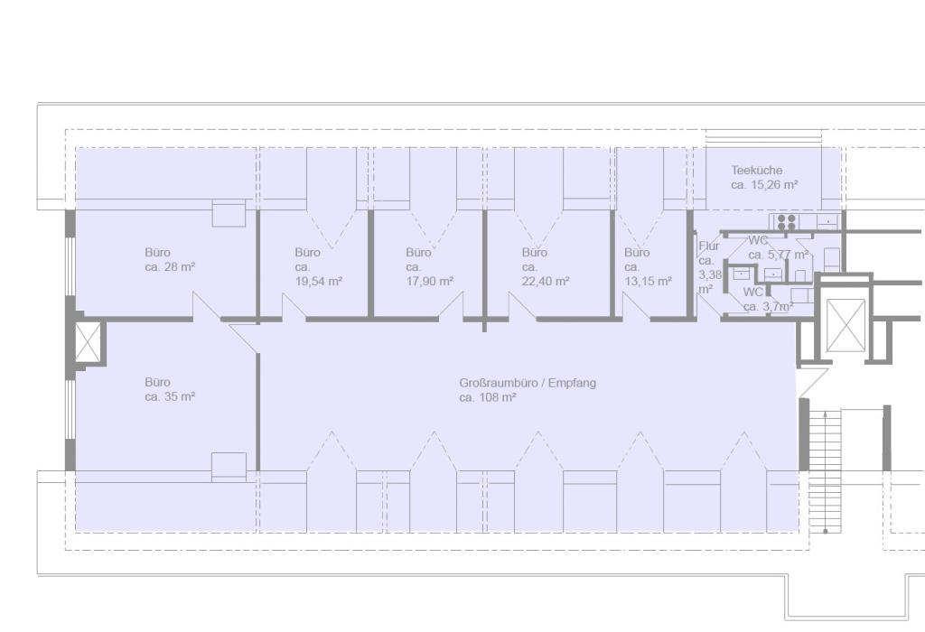
Die hier angebotene attraktive und multifunktionale Bürofläche befindet sich im Gewerbegebiet Taufkirchen / Potzham, welches in wenigen Minuten von der Autobahnausfahrt Oberhaching zu erreichen ist. Die Gewerbeeinheit im Dachgeschoss ist auf 7 großzügige Räume aufgeteilt und umfasst insgesamt ca. 272 m². Zusätzlich befindet sich in der Einheit ein heller Küchenraum und zwei getrennte Toilettenbereiche. Das Bürogebäude ist bereits mit einem Glasfaserkabelanschluss ausgestattet, welcher nach Bedarf in der Einheit verlegt werden kann. Ein Lastenaufzug, eine Rampe zur Anlieferung sowie Außenstellplätze vor dem Gebäude stehen zur Verfügung.
- MERKMALE & AUSSTATTUNG
- moderner Vinylboden in Holzoptik
- Lift bis 1000 kg
- Drehstrom
- Glasfaserkabelanschluss im Gebäude
- Küchenraum
- Getrennte Sanitäreinrichtungen (Damen & Herren)
- Rampe für Anlieferung
- Bodenbelastung bis 500 kg / m²
Gewerbegebiet Taufkirchen / Potzham
Das Gewerbegebiet in Taufkirchen / Potzham zeichnet sich durch seine hervorragende Lage und eine optimale Anbindung an die umliegende Infrastruktur aus. Das Areal bietet Unternehmen unterschiedlichster Branchen ideale Bedingungen, sich im südlichen Umland von München niederzulassen.
Infrastruktur:
Das Gewerbegebiet befindet sich in unmittelbarer Nähe zur Autobahn A8 (München–Salzburg) sowie der A99, was eine schnelle Erreichbarkeit sowohl in das Stadtzentrum Münchens als auch in die umliegenden Regionen ermöglicht. Der Münchner Flughafen ist in etwa 40 Minuten über die A99 zu erreichen, wodurch das Gebiet auch für internationale Geschäftspartner gut angebunden ist.
Öffentliche Verkehrsmittel:
Die Anbindung an den öffentlichen Nahverkehr ist ebenfalls hervorragend. Der S-Bahnhof Taufkirchen (S3) ist nur wenige Minuten entfernt und bietet regelmäßige Verbindungen in Richtung München und Holzkirchen. Zudem gibt es mehrere Buslinien, die das Gewerbegebiet erschließen und eine direkte Anbindung an den S-Bahnhof sowie die umliegenden Orte wie Ottobrunn oder Unterhaching sicherstellen.
Zusammengefasst bietet das Gewerbegebiet Taufkirchen / Potzham eine optimale Kombination aus verkehrsgünstiger Lage, öffentlicher Anbindung und einer breiten Auswahl an Verpflegungsmöglichkeiten, was es zu einem attraktiven Standort für Unternehmen jeder Größe macht.
ENTFERNUNGEN:
Autobahnauffahrt Oberhaching (AB8 / AB99): 3 Minuten
S-Bahnhof Furth (S3): 5 Minuten
Busverbindung: Bus 225 nach Taufkirchen S-Bahn, 20 min. Takt
Bushaltestation „Wallbergstraße“: 1 Minuten Gehweg
Flughafen München: 40 Minuten Fahrtweg
Hbf München: 30 Minuten Fahrtweg
Adresse
Wallbergstr. 5
82024 Taufkirchen
Die vollständige Adresse der
Immobilie erhalten Sie auf Anfrage.
Ansprechpartner
Maximilian Ritter
Tel.: 089 444 55 66 - 13
Fax.: 089 444 55 66 - 10
Hubertusplatz 1
82041 Deisenhofen
