DIE WOHNANLAGE
Die Wohnanlage, welche im Jahr 1968 erbaut wurde, besteht aus insgesamt 22 Wohnungen auf 5 Stockwerke verteilt, welche durch einen Aufzug zu erreichen sind. Die Grundstücksgröße der gesamten Gebäude- und Freifläche beläuft sich auf 550 m².
Das Wohnhaus verfügt im Untergeschoss über gemeinschaftliche Räumlichkeiten wie z.B. eine Waschküche sowie eine Tiefgarage. Weiterhin existieren im Dachgeschoss Speicherabteile und ein Trockenplatz für die Wäsche. Im Innenhof steht den Bewohnern eine Fahrradgarage zur Verfügung.
Das Wohngebäude befindet sich in einem gepflegten und für das Alter dementsprechenden Zustand. Instandhaltungs- sowie Sanierungsarbeiten wie z.B. die Fenster oder die Tiefgarage wurden in der jüngsten Vergangenheit ordnungsgemäß durchgeführt, daher besteht derzeit nur noch ein leichter Renovierungs- und Modernisierungsbedarf.
DIE WOHNUNG
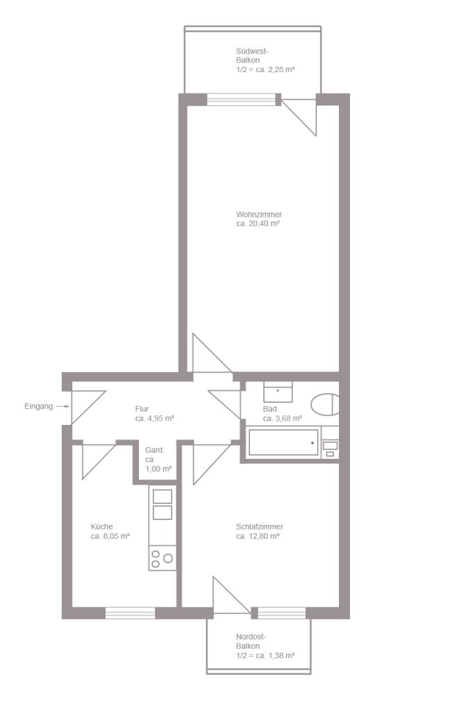
Die hier angebotene 2-Zimmer-Wohnung befindet sich im 3. Stockwerk und ist durch einen Personenaufzug oder durch das helle Treppenhaus zu erreichen.
Die Wohnung überzeugt durch einen klaren und sehr nachgefragten Grundriss und bietet Ihnen gleich 2 Balkone mit einer herrlichen Aussicht auf die umliegende Nachbarschaft (Balkonausrichtungen Süd-West und Nord-Ost).
Darüber hinaus bietet die Wohnung einen geräumigen Eingangsbereich mit einer kleinen Nischen-Garderobe, ein Badezimmer, einen Küchen-/Essbereich, ein Schlafzimmer sowie ein großzügiges Wohnzimmer.
Die Wohnung ist derzeit leerstehend und befindet sich einem sanierungsbedürften Zustand. Somit haben Sie die Möglichkeit, sich bei der Innengestaltung noch frei zu entfalten und diese Ihren Wünschen anzupassen.
Zur Wohnung gehört des Weiteren ein abschließbares Speicherabteil.
Neuhausen-Nymphenburg
München – eine Stadt, die in allen Disziplinen schöner Lebensart brilliert – egal ob Mode, Wirtschaft, Freizeitgestaltung, kulinarische Genüsse oder ärztliche Versorgung. Ein Treffpunkt für Menschen, die urbanen Lifestyle in all seinen Facetten lieben und die sich die Freiheit nehmen, so zu wohnen, wie sie es möchten. Vielfältig, dynamisch, grenzenlos und stets am Puls der Zeit.
Mitten im Herzen Münchens und genau in der Mitte zwischen Neuhausen und Maxvorstadt, zwei wahren Trendvierteln, liegt diese gut geschnittene 2-Zimmer-Wohnung in einer ruhigen Anwohnerstraße. Die direkte Nachbarschaft ist geprägt von vielen Altbauten, die liebevoll instandgehalten werden und einen reizvollen Charm hervorrufen.
Die ausgezeichnete Lage dieser Wohnung gibt Ihnen die Freiheit, sich täglich aufs Neue zu orientieren. Sie haben die Wahl: ein Bummel über den Rothkreuzplatz, Shopping in der City oder ein ausgedehnter Spaziergang durch den alten botanischen Garten. Hin zu den
Szenerestaurants und Bars, dem kulturellen Angebot am Königsplatz oder im Nymphenburger Schlosspark. Einkaufsmöglichkeiten des täglichen Bedarfs, Ärzte oder Banken sind in unmittelbarer Nähe. Diese einzigartige Wohnlage legt Ihnen München mit all seinen Annehmlichkeiten zu Füßen.
Auch die Infrastruktur ist optimal. In nur 500 Meter Entfernung (ca. 7 Gehminuten) erreichen Sie die U-Bahn U1 sowie die Busstation am Rothkreuzplatz. Auch die Straßenbahn mit der Linie 12 ist in nur 5 Gehminuten zu erreichen. Eine schnelle Anbindung zum Mittleren Ring ist garantiert.
Adresse
80636 München
Die vollständige Adresse der
Immobilie erhalten Sie auf Anfrage.
Ansprechpartner
Maximilian Ritter
Tel.: 089 444 55 66 - 13
Fax.: 089 444 55 66 - 10
Hubertusplatz 1
82041 Deisenhofen
