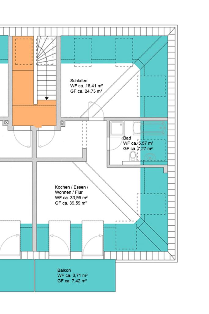
Diese charmante 2-Zimmer-Dachgeschosswohnung bietet ein einzigartiges Wohnambiente mit besonderem Wohlfühlcharakter. Das großzügige Wohn- und Esszimmer mit offenem Küchenbereich schafft einen einladenden Raum, der durch die Dachschrägen eine gemütliche Atmosphäre erhält.
Der nach Südwesten ausgerichtete große Balkon lädt dazu ein, den Tag bei einem herrlichen Blick ins Grüne ausklingen zu lassen und bietet viel Platz zum Entspannen und Genießen der Abendsonne.
Das großzügige Schlafzimmer bietet eine weitläufige Grundfläche, die ausreichend Platz für mehrere Schränke und weitere Einrichtungsgegenstände wie Kommoden oder Sitzgelegenheiten lässt. Das moderne Tageslichtbadezimmer verfügt über eine Badewanne, Dusche sowie einen Waschmaschinenanschluss. Durch ein großes Dachflächenfenster dringt viel natürliches Licht in den Raum, was eine helle und freundliche Atmosphäre schafft.
Ein Carport-Stellplatz mit Starkstromanschluss steht direkt vor dem Haus zur Verfügung und bietet zusätzliche Annehmlichkeiten für E-Mobilität. Darüber hinaus gehört zur Wohnung ein großes Kellerabteil, das zusätzlichen Stauraum bietet.
Die Wohnung überzeugt durch ihre hochwertige Ausstattung sowie die nachhaltige und massive Bauweise, die höchsten Wohnkomfort und Langlebigkeit garantiert. Hier verbinden sich modernes Design und durchdachte Funktionalität zu einem harmonischen Gesamtkonzept, das keine Wünsche offenlässt.
- LAGE
- grüne und idyllische Umgebung
- nur wenige Minuten vom Zentrum Gröbenzell entfernt
- S-Bahnanschluss S3 (Holzkirchen-Mammendorf)
- Geschäfte des täglichen Bedarfs in unmittelbarer Nähe
- _________________________________________________
- ALLGEMEIN
- exklusives Wohngebäude mit nur 6 Wohneinheiten
- UG, EG, 1.OG, DG
- Baujahr 2022
- hochwertige und moderne Ausstattung
- massive Ziegelbauweise mit Dämmziegeln
- zukunftsorientierte und nachhaltige Bauweise
- ökologisches Heizsystem (Wärmepumpe)
- Energieeffizienzklasse A+ (KFW Effizienzhaus 55)
- alle Einzelgaragen und Carport-Stellplätze mit Starkstromanschluss
- __________________________________________________
- WOHNUNG
- 2-Zimmer-Dachgeschosswohnung
- sonniger Südwest-Balkon
- WIMMER Eichendielenparkett in den Wohn- sowie Schlafbereichen
- REMO Feinsteinzeug-Fliesen in den Sanitärräumen sowie im Hobbyraum
- Sanitärgegenstände von Hans-Grohe und Villeroy & Boch
- Tageslichtbadezimmer mit Badewanne und Dusche
- kontrollierte Raumbelüftung mit Wärmerückgewinnung
- 3-fach verglaste Kunststofffenster mit Aluverschalung von JSOKO
- elektrisch bedienbare Jalousien in allen Räumen, auch die Dachflächenfenster sind mit Jalousien ausgestattet (Motor Smofy)
- Fußbodenheizung in jeglichen Räumen
- Waschmaschinenanschluss in der Wohnung
- großes Kellerabteil
- Carportstellplatz
Die überschaubare und beliebte Gemeinde Gröbenzell mit ihren knapp 20.000 Einwohnern gehört zum oberbayrischen Landkreis Fürstenfeldbruck – in grüner Umgebung gelegen, aber doch sehr nah am Münchner Stadtzentrum.
In Gröbenzells Ortszentrum befindet sich auch die komplette Infrastruktur mit ausgezeichneten Einkaufsmöglichkeiten für den täglichen Bedarf, einem großen Angebot an Cafés und Restaurants sowie Ärzten, Kindertagesstätten, Krippen und Hort.
Weiterhin ist die Gemeinde Gröbenzell Schulaufwandsträgerin für drei Grundschulen. Neben diesen gibt es noch das Gymnasium Gröbenzell und die Rudolf-Steiner-Schule im Ort. Andere weiterführende Schulen finden Sie in den umliegenden Nachbargemeinden wie z.B. Olching oder Puchheim.
Gerade Familien schätzen das umfangreiche Freizeitangebot rund um den Gröbenzeller See, den Olchinger See und die Langwieder Seenplatte.
Darüber hinaus zeichnet sich Gröbenzell durch eine sehr gute Verkehrsanbindung aus, was es ideal für Pendler macht. Im öffentlichen Nahverkehr ist Gröbenzell mit einer eigenen Haltestelle der Linie S3 (Mammendorf-Holzkirchen) angebunden und die Münchner Innenstadt ist in gut 25 Minuten zu erreichen. Mit der S-Bahnlinie S3 ist auch ein direkter Anschluss an die ICE-Haltestelle in Pasing vorhanden. Durch die nahegelegene A8 und A99 ist eine sehr gute Verbindung zum Münchner Autobahnnetz gegeben.
Das angebotene Objekt befindet sich in einer ruhigen und dennoch zentralen Wohngegend, die durch große Gärten und familiäres Ambiente gekennzeichnet ist.
Das Zentrum von Gröbenzell mit der S-Bahnhaltestelle ist nur 5 Fahrradminuten entfernt.
Adresse
82194 Gröbenzell
Die vollständige Adresse der
Immobilie erhalten Sie auf Anfrage.
Ansprechpartner
Maximilian Ritter
Tel.: 089 444 55 66 - 13
Fax.: 089 444 55 66 - 10
Hubertusplatz 1
82041 Deisenhofen
