DIE WOHNANLAGE
Das Wohnhaus wurde im Jahr 1971 in einer wertbeständigen Ziegelbauweise erbaut und besteht aus insgesamt 9 Wohnungen auf 4 Stockwerke verteilt. Die Grundstücksgröße der gesamten Gebäude- und Freifläche beläuft sich auf 336 m².
Das Wohnhaus verfügt im Untergeschoss über gemeinschaftliche Räumlichkeiten wie z.B. ein Wasch- und Trockenraum und ein Fahrradabstellraum.
Das Wohngebäude befindet sich im Allgemeinen in einem durchschnittlichen, dem Alter entsprechenden Zustand. Folgende wesentliche Instandhaltungsmaßnahmen wurden in den letzten Jahren durchgeführt:
2006 Fensteraustausch
2012 Fassadendämmung Nordseite
2013 Aufzugaustausch
2017 komplette Dachsanierung
DIE WOHNUNG
Diese großzügige Penthouse-Wohnung im 4.Obergeschoss bietet Ihnen ein einzigartiges Wohnerlebnis mit lichtdurchfluteten Räumen und durchdachter Raumaufteilung.
Ein besonderes Highlight stellt die überdurchschnittlich große Dachterrasse mit ca. 147 m² dar, die per Sondernutzungsrecht der Wohnung zugeordnet ist. Aktuell über das gemeinschaftliche Treppenhaus erreichbar, besteht die Möglichkeit, sie direkt mit der Wohnung zu verbinden oder das gemeinschaftliche Treppenhaus entsprechend anzupassen.
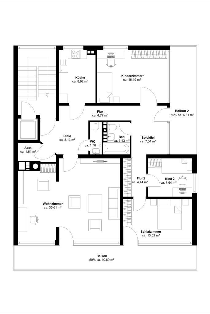
Die Wohnung umfasst vier geräumige Zimmer, zwei großzügige Dielen, ein Badezimmer, eine Gästetoilette sowie eine funktionale Küche. Zwei große Balkone erweitern den Wohnraum ins Freie und bieten weitere attraktive Außenflächen. Eine Abstellkammer in der Wohnung und ein zugehöriges Kellerabteil sorgen für zusätzlichen Stauraum.
Die Immobilie befindet sich in einem ordnungsgemäßen Zustand, weist jedoch in einigen Bereichen Modernisierungsbedarf auf. Dies bietet Käufern die Möglichkeit, individuelle Anpassungen vorzunehmen und die Wohnung nach den eigenen Vorstellungen zu gestalten.
Ein urbanes Wohnerlebnis mit einzigartigen Freiflächen, flexiblen Gestaltungsmöglichkeiten und einer herausragenden Lage – eine seltene Gelegenheit für anspruchsvolle Käufer.
Der Stadtteil Schwabing West liegt im Münchner Norden, westlich der Isar und nördlich der Maxvorstadt.
Mit seinen knapp 70.000 Einwohnern zählt Schwabing West bereits seit längerem zu den angesagten Wohngebieten. Das Viertel punktet mit Kultur, Natur und jugendlichem Flair.
Mit dem Olympiapark, dem markanten Olympiastadion oder der BMW Welt liegen ein paar der bekanntesten Münchner Plätze in diesem schönen Stadtteil. In den Luitpoldpark kommen Besucher aus ganz München. In der Mitte des Parks befindet sich ein Obelisk, welcher zu Ehren des Prinzregenten Luitpold erbaut wurde. Hier reihen sich architektonische Gebäude aneinander, wie zum Beispiel das Bamberger Haus. Diese Gaststätte mit Biergarten ist ein beliebtes Ziel. Weitere wunderschöne Erholungsgebiete und Grünflächen wie die Panzerwiese oder die Badeseen Fasaneriesee und Lerchenauer See erhöhen den Freizeitwert. Es gibt romantische Hinterhof-Restaurants, Secondhand-Shops und das ganze Jahr lang bietet der Olympiapark ein vielfältiges Angebot an Sport, Musik und kulturellen Events, wie z.B. das Tollwood Festival oder das Sommerfestival Impark.
Kindergärten, Kinderkrippen, Grundschulen und nahezu sämtliche weiterführende Schulen (z.B. Willy-Brandt-Gesamtschule) befinden sich in unmittelbarer Nähe.
Weiterhin haben Sie hier eine sehr gute Infrastruktur – alle Geschäfte des täglichen Bedarfs wie Supermärkte, Apotheken etc. befinden sich in der unmittelbaren Nähe fußläufig entfernt. Sämtliche Ärzte, Restaurants und Cafés sind ebenfalls vorhanden.
Die Wohnung befindet sich in einer verkehrsberuhigten Straße, also perfekt für Familien, da somit weniger Verkehr gegeben ist und die Straße hauptsächlich nur von Anliegern befahren wird.
Die U-Bahn-Haltestelle Petuelring mit den U-Bahnlinien U3 und U8 ist fußläufig nur 3 Minuten von der Wohnung entfernt. Auch die Tramhaltestelle befindet sich direkt am Petuelring (Linie 27 und N27).
Der nahe Anschluss zum Mittleren Ring bietet optimale Anbindungen, um schnell in Richtung München oder auf die Autobahnlinie 99 zu gelangen, welche nach Süden in die Berge führt.
Adresse
80809 München
Die vollständige Adresse der
Immobilie erhalten Sie auf Anfrage.
Ansprechpartner
Maximilian Ritter
Tel.: 089 444 55 66 - 13
Fax.: 089 444 55 66 - 10
Hubertusplatz 1
82041 Deisenhofen
