ALLGEMEIN
– konventionelle Ziegelbauweise
– Massiv-Holzblockwand (35 cm)
– Wärmedämmverbundsystem (EG & OG)
– gute Bausubstanz
– gesundes Raumklima
– Energieeffizienz: Solaranlage zur Warmwasserbereitung
– Süd-Ost-West-Ausrichtung
– idyllische und professionelle Gartengestaltung
– großer Carport mit angrenzendem Schuppen
AUFTEILUNG
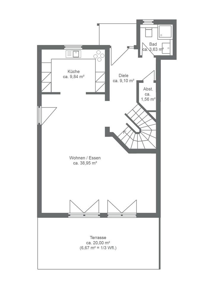
– EG
– heller Wohnraum mit offenem Küchenbereich
– geräumiger Eingangsbereich
– Abstellkammer
– Duschbad
– großzügige Terrasse
– Süd-Ost-West-Garten
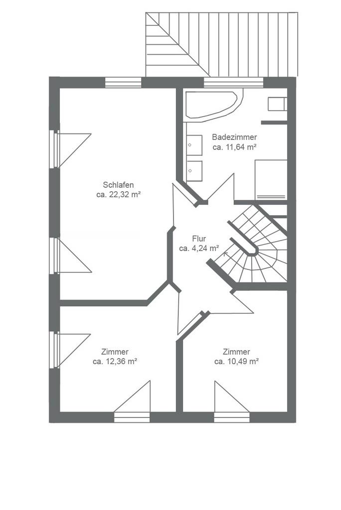
– OG
– raumhaltiges Dach
– Tageslichtbadezimmer
– 3 Schlafzimmer
– Weitblick
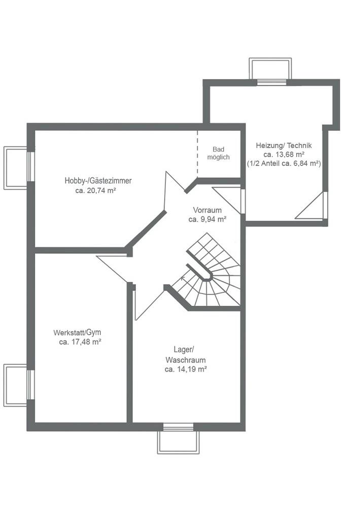
– UG
– großer Hauswirtschaftsraum
– Werkstatt / Lager
– Hobbyraum mit Badanschluss
– Heiz-/Technikraum
AUSSTATTUNG
– elegantes, halb gewendeltes Treppenhaus
– Fußbodenheizung und Radiatoren
– Masterbad mit bodengleicher Dusche und Eckbadewanne
– Rollläden im gesamten Haus
– 3-fach verglaste Fenster
– neu erbauter Carport
– das Haus wurde 2024 neu gestrichen (Außen & Innen)
– gemeinschaftliche Heizungsanlage (geteilte Kosten, jedes Haus hat aber seinen eigenen Zähler)
– Fernwärmeleitung liegt bereits vor dem Haus
– auf Wunsch: Einbau einer Entkalkungsanlage
– Badeinbau im UG möglich
– Bodenbelag wird noch vom Verkäufer auf Wunsch des Käufers verlegt
Oberhaching-Deisenhofen liegt im idyllischen Süden des Landkreises München, eingebettet in eine Gegend, die den Charme eines ruhigen Wohnviertels mit der Nähe zur Natur und zugleich eine sehr gute Anbindung an die Stadt München vereint. Die Gemeinde Oberhaching ist für ihre hohe Lebensqualität, ihre naturnahe Lage sowie die Mischung aus Tradition und Moderne bekannt. Durch die gute Infrastruktur und die zahlreichen Freizeitangebote wird der Vorort besonders von Familien, Berufspendlern und naturverbundenen Menschen geschätzt.
Die Nähe zur S-Bahn-Station Deisenhofen, die fußläufig von der Immobilie erreichbar ist, sorgt für eine reibungslose Anbindung an die Münchner Innenstadt. Die S-Bahn-Linie S3 bringt Sie in etwa 20 Minuten direkt zum Marienplatz, was die Lage besonders attraktiv für Berufspendler macht, die in der Stadt arbeiten, aber die Vorzüge eines naturnahen Lebensstils genießen möchten. Zudem sind die Autobahnen A995 und A8 nur wenige Autominuten entfernt und ermöglichen schnelle Verbindungen sowohl zum Münchner Mittleren Ring als auch zu beliebten Ausflugszielen in den bayerischen Alpen oder zu den Seen im Umland, wie dem Starnberger See und dem Tegernsee.
Die unmittelbare Umgebung ist geprägt von gepflegten Einfamilienhäusern und modernen Doppelhaushälften. Die breiten, verkehrsberuhigten Straßen und großzügigen Grünflächen machen das Wohngebiet auch für Kinder sicher und bieten Raum für Spaziergänge und Erholung im Freien. In der Nähe befinden sich Kindergärten, Schulen und Sportvereine, wodurch das Viertel eine ideale Wohnlage für Familien darstellt. Es gibt auch zahlreiche Spielplätze und Grünanlagen, die Familien ein zusätzliches Plus an Freizeitmöglichkeiten bieten.
Oberhaching und der Ortsteil Deisenhofen bieten zudem ein reichhaltiges Kultur- und Vereinsleben. Verschiedene Vereine und Veranstaltungen fördern ein starkes Gemeinschaftsgefühl und bieten Einwohnern aller Altersgruppen die Möglichkeit zur aktiven Mitgestaltung und Vernetzung. Darüber hinaus befinden sich Geschäfte des täglichen Bedarfs, Supermärkte und ein Wochenmarkt in der Nähe, sodass die Bewohner der Josef-Weigl-Straße viele Besorgungen bequem vor Ort erledigen können.
Für Naturliebhaber bietet die Lage direkten Zugang zu zahlreichen Wander- und Radwegen im nahegelegenen Perlacher Forst und im Isartal, wo man unberührte Natur und idyllische Ruhe genießen kann. In der Umgebung gibt es zudem beliebte Naherholungsgebiete wie das Mangfallgebirge, das im Sommer zum Wandern und im Winter zum Skifahren einlädt, und die malerischen bayerischen Seen, die nur eine kurze Autofahrt entfernt sind.
Adresse
82041 Deisenhofen
Die vollständige Adresse der
Immobilie erhalten Sie auf Anfrage.
Ansprechpartner
Natalie Ritter
Tel.: 089 444 55 66 - 12
Fax.: 089 444 55 66 - 10
Hubertusplatz 1
82041 Deisenhofen
