Das Grundstück:
Das real geteilte Mittelhausgrundstück liegt in beliebter und zentraler Lage von Kirchheim bei München. Es befindet sich in einer gepflegten und familienfreundlichen Reihenhaussiedlung, welche sich ideal in das Ortsbild einfügt. Die Siedlung verfügt zudem über Grünflächen und Spielplätze, und mehrere E-Ladestationen für Elektroautos.
Zu der Immobilie gehören eine Einzelgarage im nahe gelegenen Garagenhof sowie eine gemeinschaftliche Zuwegung, Grünfläche und Tonnenhaus (zugeordnet per Miteigentumsanteilen). Die gesamte zu erwerbende Grundstücksfläche beträgt 206,69 m².
Das Haus:
Das gepflegte Reihenmittelhaus wurde 1971 in massiver Bauweise erbaut und überzeugt durch eine großzügige Raumaufteilung. Das Haus erstreckt sich über eine Gesamtfläche von ca. 221 m², mit einer Wohnfläche von ca. 139 m² sowie einer Nutzfläche von ca. 82 m².
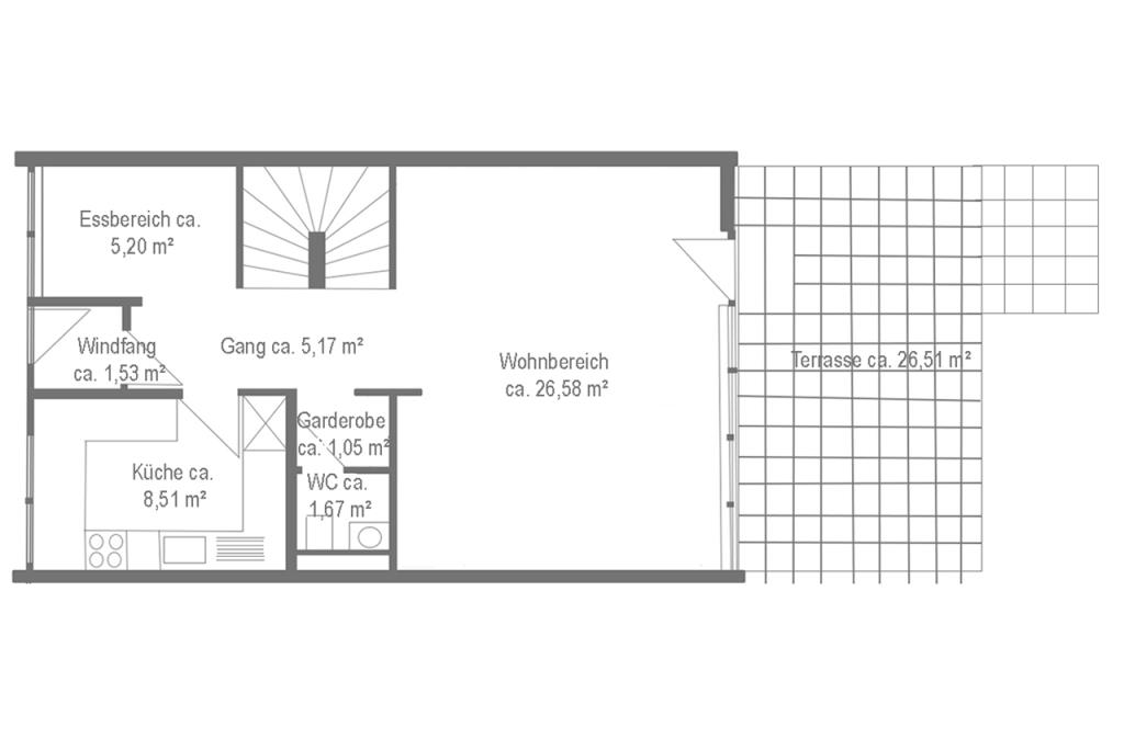
Über einen Vorhof mit Platz für Mühlhäuschen wie auch Fahrradabstellfläche treten Sie über den Windfang in das Erdgeschoss ein. Ein offenes Raumkonzept mit halboffener Treppe und Ess-/Wohnbereich in Südausrichtung bringt bereits beim Betreten viel Licht und ein warmes Raumgefühl. Über den Wohnbereich gelangen Sie direkt in den nach Süden ausgerichteten Garten mit großer, neuwertiger Terrasse und Gartenhaus, der zu gemütlichen Grill-Sommerabenden einlädt. Die Küche befindet sich angrenzend zum Essbereich und kann bei Wunsch teilgeöffnet werden. Zudem befindet sich noch eine Einbaugarderobe mit Gäste-WC im Erdgeschoss.
Im Obergeschoss befinden sich drei Schlafzimmer – zwei davon mit Süd-Ausrichtung – sowie ein Badezimmer mit Badewanne.
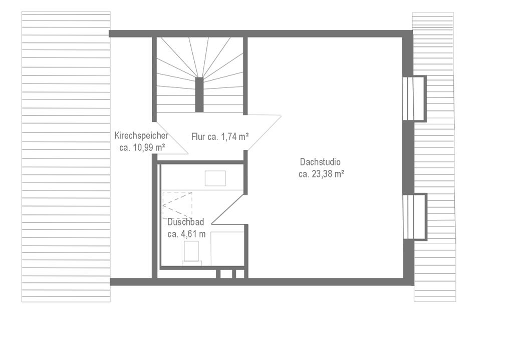
Das ausgebaute Dachgeschoss überzeugt durch ein großzügiges Studio mit beeindruckender Deckenhöhe. Zudem finden Sie hier ein weiteres Badezimmer, sodass das Dachgeschoss als ganz eigener Wohnbereich genutzt werden kann. Ein kleiner Kriechboden dient zudem als große Staufläche.
Im Untergeschoss erwarten Sie ein Hobbyraum, ein Technik-/Heizraum und ein großer Vorrats-/Waschraum – genügend Platz für jegliche Hobbyaktivitäten oder auch Heimwerker.
Das Haus befindet sich in einem gepflegten, teilweise renovierten Zustand. Kleine bis mittlere Renovierungsmaßnahmen sind zu empfehlen.
- LAGE / GRUNDSTÜCK
- zentrale Lage in Kirchheim b. München
- nur wenige Gehminuten vom Ortskern Pfarrer-Caspar-Mayer-Platz
- Nachbarschaft bestehend aus Reihen– und Doppelhäusern
- gepflegte Reihenhaussiedlung mit Grünflächen und Spielplätzen
- E-Ladestationen in Garagenhof
- BAULICHE MERKMALE
- Baujahr 1971
- Massivbauweise
- gedämmte, doppelschalige Kommunwand zu Nachbarhäusern
- Stahlbetonmassivplatten
- Dachsanierung (Dämmung) in 1997
- Badsanierung 2006
- isolierte Holzfenster 2009
- Außenrollladen 2020
- Gaszentralheizung 2003 / Radiatoren
- Fernwärme bis zur Zuwegung verlegt
- Parkettboden
- kleine– mittlere Renovierungsmaßnahmen sind empfehlenswert (Küche, Böden, evtl. Bäder und Heizung)
- AUFTEILUNG & AUSSTATTUNG
- gute Raumaufteilung
- 5 Zimmer zzgl. Hobbyraum
- 2 Bäder und Gäste-WC
- 3 Schlafzimmer im Obergeschoss
- ausgebautes Dachstudio
- Eingangsbereich mit Windfang
- abgegrenzte Küche, angrenzend zum Essbereich (kann halb geöffnet werden)
- UG: Hobbyraum, Technik-/Heizraumraum, Vorrats-/Waschraum
- Südterrasse mit Südgarten und Gartenhaus
- kleiner Vorhof im Hauseingangsbereich
- Einzelgarage im Garagenhof (5 x 2,6 m)
Die Immobilie befindet sich in der attraktiven Gemeinde Kirchheim bei München, die nur etwa 15 Kilometer östlich der Münchener Innenstadt liegt. Die Gemeinde gliedert sich in 3 Gemeindeteile: Kirchheim, Heimstetten und Hausen.
Die Infrastruktur ist optimal: Die direkte Anbindung an die A99 (Münchner Autobahnring) ist ideal für Pendler und Geschäftsreisende. Auch die S-Bahn-Linie S2 (Haltestelle Heimstetten) sorgt für eine schnelle und unkomplizierte Verbindung nach München und die umliegenden Gemeinden. Der Flughafen München ist in ca. 20–30 Minuten Fahrzeit erreichbar.
Das Bildungsangebot ist zudem mit zwei Kinderkrippen, fünf Kindergärten, drei Grundschulen, einer Mittelschule sowie einem Gymnasium mehr als ausgebaut. Auch verfügt die Gemeinde über Tagesmüttervermittlung, ein modernes Jugendzentrum und ein umfangreiches Ferienprogramm in den Sommerferien.
Einkaufsmöglichkeiten, Restaurants und Geschäfte des täglichen Bedarfs befinden sich in unmittelbarer Umgebung rund um den idyllischen Ortskern am Pfarrer-Caspar-Mayer-Platz mit seinen kleinen Einzelhandelsläden, Bäckerei und einem Wirtshaus.
Das Freizeitangebot in der unmittelbaren Nähe ist äußerst ausgeprägt – ob auf dem Bajuwarenhof, in der MAXX Arena oder im Skatepark, in der Kletterhalle oder im Heldenverlies. Die ländliche Struktur, das gut ausgebaute Fahrradwegenetz und der Heimstettener See sorgen in der familienfreundlichen Gemeinde für viel Erholung. Auch das einzige Autokino in München befindet sich im Nachbarort Aschheim und ist in lediglich 9 Autominuten erreichbar.
Kirchheim bei München ist ein gefragter Wohnort mit einem hohen Lebensstandard und einer gut ausgebauten Infrastruktur. Hier wird Tradition und Moderne, die Nähe zur Großstadt und ein ländliches Umfeld mit viel Natur, Freizeit- und Sportmöglichkeiten für Groß und Klein sowie Erholung direkt vor der Haustür für Jung und Alt verbunden. Die ruhige, familienfreundliche Umgebung zieht insbesondere junge Familien und Berufstätige an, die die Nähe zur Natur aber auch die gute Verbindung nach München schätzen.
Adresse
85551 Kirchheim
Die vollständige Adresse der
Immobilie erhalten Sie auf Anfrage.
Ansprechpartner
Natalie Ritter
Tel.: 089 444 55 66 - 12
Fax.: 089 444 55 66 - 10
Hubertusplatz 1
82041 Deisenhofen
