DAS WOHNGEBÄUDE
Das Wohngebäude wurde im Jahr 1949 erbaut und befindet sich in einem gepflegten und guten Zustand. Es besteht aus insgesamt 5 Wohnungen, welche sich über das Erdgeschoss, Obergeschoss und Dachgeschoss erstrecken. Zuletzt wurde das Haus an die Geothermie / Fernwärme angeschlossen.
DIE WOHNUNG
Die 2-Zimmer-Wohnung befindet sich im 1. Obergeschoss und überzeugt durch einen attraktiven Grundriss, ein sonniges und ruhiges Ambiente sowie eine zentrale Lage.
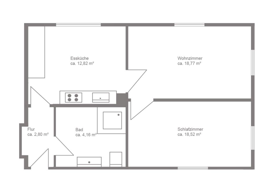
Über den Flur mit kleiner Garderobennische erreichen Sie die knapp 13 m² große Küche, welche reichlich Platz bietet und auch ideal als Essküche genutzt werden kann. Die Küche ist mit sämtlichen Elektrogeräten (außer Spülmaschine) ausgestattet und wurde über die Jahre hinweg gut gepflegt.
Des Weiteren verfügt die Wohnung über ein ca. 19 m² großes und helles Wohnzimmer, ein geräumiges Schlafzimmer sowie über ein renoviertes Badezimmer mit Dusche und Waschmaschinenanschluss.
Der Wohnung ist ein großes Kellerabteil zugeordnet und ein gemeinschaftlicher Trockenraum im Untergeschoss steht den Mietern zusätzlich zur Verfügung.
Die gut aufgeteilte 2-Zimmer-Wohnung befindet sich in Deisenhofen in absolut zentraler und beliebter Lage.
Oberhaching, gelegen im Südosten Münchens, ist eine Flächengemeinde mit über 13.500 Einwohnern. Die Gemeinde verbindet anspruchsvoll-ländliches Wohnen und lebendige Traditionspflege mit der Nähe zur Landeshauptstadt München und zu südbayrischen Naherholungsgebieten.
Die Infrastruktur Oberhachings lässt keine Wünsche offen. In fußläufig erreichbarer Nähe befindet sich das Schulzentrum (Grundschule, Mittel- und Wirtschaftsschule, Gymnasium und die zukünftige Realschule und FOS) sowie die Gemeindeverwaltung. Der Ort verfügt über 8 Kindergärten sowie Krippen und Horte. Die Volkshochschule bietet ein anspruchsvolles und reichhaltiges Programm. Kirchen sowie eine Vielzahl unterschiedlichster Vereine ergänzen das vielseitige Angebot dieser lebendigen und traditionsreichen Gemeinde.
Sämtliche Einkaufsmöglichkeiten und eine ausgezeichnete medizinische Versorgung durch Ärzte, Zahnärzte und Apotheken tragen zur hohen Lebensqualität von Oberhaching bei.
Der wohl bekannteste Ortsteil ist Deisenhofen, der über einen eigenen S-Bahn-Anschluss (S3 und Regionalbahn) verfügt, wodurch Pendler fast rund um die Uhr in 10 minütigem Takt in nur 25 Minuten Fahrzeit bis zum Marienplatz gelangen. Diverse Buslinien verbinden den Ort mit den umliegenden Gemeinden und auch die BAB München-Salzburg ist verkehrsgünstig zu erreichen.
Adresse
82041 Deisenhofen
Die vollständige Adresse der
Immobilie erhalten Sie auf Anfrage.
Ansprechpartner
Isabella Braun
Tel.: 089 444 55 66 - 17
Fax.: 089 444 55 66 - 10
Hubertusplatz 1
82041 Deisenhofen
